半田市、常滑市、知多市、東浦町、阿久比町、武豊町、美浜町エリアの不動産情報をチタコー不動産販売がご紹介!

半田市 の新築一戸建て

新築戸建

半田市板山町 新築戸建 2,777万円

  • 区画図

    区画図

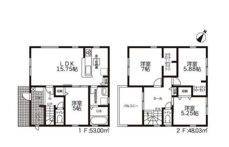
  • 間取

    間取

資料請求・問合せ(無料)
電話でのお問い合わせ
0120-46-3011

受付時間/10時~17時 定休日/火・水

株式会社チタコーポレーション

お気に入りに追加

基本情報

価格
間取り
4LDK
建物面積
101.03㎡ (30.56坪)
土地面積
150.73㎡ (45.60坪)
築年月
2026年01月
所在地
愛知県半田市板山町2丁目74 01
交通

名鉄河和線 青山駅 バス乗車9分 バス停:東板山 停歩5分

設備

水道: 公営/ ガス: 都市/ 排水: 下水/

通学区

中学校 青山中学校 2,100m
小学校 板山小学校 750m

物件概要

接道状況 南東側 幅員2.4m  建物構造 -
建物階建 - 駐車場
都市計画 市街化区域 地目 -
用途地域 第一種住居 地勢 -
建ぺい率 60% 私道負担面積 -
容積率 200% 土地権利 所有権
現況 未完成 取引形態 仲介
引渡時期 相談 引渡可能年月 -
管理番号 114 取引条件の有効期限 -
建築確認番号 KS125-0420-56928号
情報登録日 2025年11月10日 次回更新日 2025年12月19日
備考 景観法 法22条区域 宅地造成等工事規制区域 前面道路幅員制限

こちらの物件もおすすめです

PAGE
TOP