半田市、常滑市、知多市、東浦町、阿久比町、武豊町、美浜町エリアの不動産情報をチタコー不動産販売がご紹介!

半田市 の新築一戸建て

新築戸建

半田市柊町 新築戸建 3,280万円

NEW
  • 間取

    間取

  • 外観

    外観

  • 外観

    外観

  • 外観

    外観

  • 外観

    外観

ポイント

閑静な住宅街、三方道路角地で、日当たり良好。

資料請求・問合せ(無料)
電話でのお問い合わせ
0120-46-3011

受付時間/10時~17時 定休日/火・水

株式会社チタコーポレーション

お気に入りに追加

基本情報

価格
間取り
3SLDK
建物面積
106㎡ (32.07坪)
土地面積
108.27㎡ (32.75坪)
築年月
2025年12月
所在地
愛知県半田市柊町1丁目11-2
交通

名鉄河和線 住吉町駅 徒歩11分 

設備

水道: 公営/ 排水: 下水/

通学区

中学校 半田中学校 1,223m
小学校 雁宿小学校 1,055m

物件概要

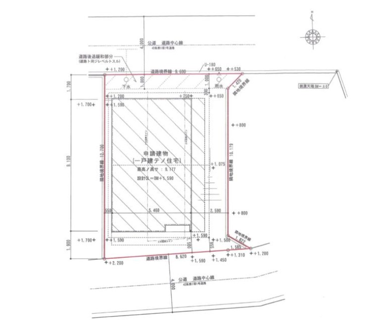
接道状況 状況:角地
北側 幅員4m 公道に9.6m接面
南側 幅員4m 公道に10.2m接面
建物構造 木造
建物階建 2階 駐車場 有 2台
都市計画 市街化区域 地目 宅地
用途地域 第一種中高層住居専用 地勢 -
建ぺい率 60% 私道負担面積 -
容積率 200% 土地権利 所有権
現況 完成済 取引形態 仲介
引渡時期 相談 引渡可能年月 -
管理番号 138 取引条件の有効期限 -
建築確認番号 第愛建2022建築確認00649号
情報登録日 2025年11月27日 次回更新日 2025年12月11日
備考 -

こちらの物件もおすすめです

PAGE
TOP