半田市 の新築一戸建て
新築戸建
半田市郷中町 新築戸建 3,795万円
NEW
基本情報
- 価格
-
3,795万円月々の支払い例を見る
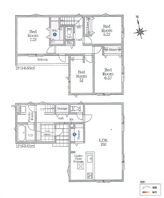
- 間取り
- 4LDK
- 建物面積
- 108.06㎡ (32.69坪)
- 土地面積
- 146.71㎡ (44.38坪)
- 築年月
- 2025年04月
- 所在地
- 愛知県半田市郷中町3丁目3号棟
- 交通
-
名鉄河和線 知多半田駅 徒歩13分
JR武豊線 半田駅 徒歩13分
設備
水道: 公営/ ガス: オール電化/ 排水: 下水/
通学区
| 中学校 | 成岩中学校 |
|---|---|
| 小学校 | 成岩小学校 |
物件概要
| 接道状況 | 東側 幅員3m | 建物構造 | 木造 |
|---|---|---|---|
| 建物階建 | 2階 | 駐車場 | 有 2台 |
| 都市計画 | 市街化区域 | 地目 | 宅地 |
| 用途地域 | - | 地勢 | - |
| 建ぺい率 | 60% | 私道負担面積 | - |
| 容積率 | 200% | 土地権利 | 所有権 |
| 現況 | 完成済 | 取引形態 | 仲介 |
| 引渡時期 | 相談 | 引渡可能年月 | - |
| 管理番号 | 146 | 取引条件の有効期限 | - |
| 建築確認番号 | - | ||
| 情報登録日 | 2025年12月01日 | 次回更新日 | 2025年12月19日 |
| 備考 | - |