半田市、常滑市、知多市、東浦町、阿久比町、武豊町、美浜町エリアの不動産情報をチタコー不動産販売がご紹介!
一般公開
77件
会員限定
0件
店頭公開
1件
0120-46-3011
受付時間/10時~17時 定休日/火・水
0
最近見た
お気に入り
ログイン
6 件
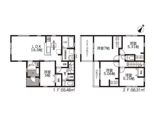
新築戸建て
NEW
愛知県半田市板山町2丁目
3,277万円
2,777万円
愛知県半田市北二ツ坂町2丁目11番4 01
3,680万円
愛知県半田市北二ツ坂町2丁目
中古戸建
愛知県知多郡阿久比町白沢字東豊石山
3,750万円
6件表示 / 6件中
選択中の物件をまとめて